REQUEST A TOUR If you would like to see this home without being there in person, select the "Virtual Tour" option and your agent will contact you to discuss available opportunities.
In-PersonVirtual Tour

$ 20,000,000
Est. payment | /mo
3.24 Acres Lot
$ 20,000,000
Est. payment | /mo
3.24 Acres Lot
Key Details
Property Type Vacant Land
Sub Type Lots/Land
Listing Status Active
Purchase Type For Sale
MLS Listing ID NP25138687
Lot Size 3.240 Acres
Property Sub-Type Lots/Land
Property Description
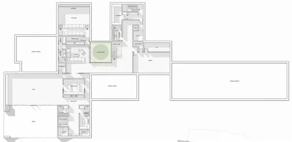
Beverly Hills Luxury Estate Site Hits the Auction Block! Don't miss the bankruptcy auction of one of Beverly Hills most coveted development sites: a spectacular estate in the exclusive, guard- gated Bella Vista Estates. This is a rare opportunity for a homeowner, investor or developer to build a one-of-a-kind estate in one of Los Angeles most exclusive enclaves. The 3.2-acre site includes detailed architectural plans for a 25,000+ s.f. ultra luxury estate. Designed for elevated living and grand scale entertaining, the planned estate features 5 Bedrooms, 2 Guest or Staff Suites,8 Full Bathrooms, 7 Half Bathrooms, 11 Car Garage, Private Theater, Gym with Spa, Wraparound Pool, and Expansive views of hills and valleys towards Beverly Hills. The guarded community of Bella Vista Estates is truly one of the most private, secure and prestigious enclaves in Los Angeles. With gorgeous architectural plans, grading underway, and panoramic views, this site is ready for a visionary buyer to bring a luxury estate to life quickly. Due diligence materials, court approved Bid Procedures, and property information are available upon request
Location
State CA
County Los Angeles
Direction San Ysidro Drive to Summitridge
Interior
Fireplace No
Exterior
Utilities Available Cable TV, Electric
View Y/N No
Others
Tax ID 4384023023
Acceptable Financing Cash
Listing Terms Cash

Listed by Jodi DiTolla DiTolla Real Estate
GET MORE INFORMATION

Keegan Wetzel
Founder of Multifamily | License ID: 02153342







